服务热线
15951931910
·ADD: 江苏·扬州
·项目面积: 6000平方米
·完成时间:2026
·设计范围: 建筑设计、室内设计
·设计单位: 江蘇咏辰設計事務所

项目概况
PROJECT OVERVIEW
兴业国际宴会中心,坐落于江苏省扬州市广陵区渡江南路,致力于为新人提供“一站式奢华婚礼体验”。将现代艺术设计与永恒浪漫意境相融合,从多主题宴会厅、3D全息投影与独立仪式堂,到全流程策划执行,皆以“所见即所得”的沉浸场景与细致服务,确保每个环节精准落地。空间设计注重仪式感与私密性,亦融入当下前沿的设计语言与国际审美视野,让婚礼不仅是盛大典礼,更成为值得一生珍藏的浪漫篇章。
Xingye International Hotel, located on Dujiangnan Road in Guangling District, Yangzhou City, Jiangsu Province, is dedicated to providing couples with a "one-stop luxury wedding experience." By blending modern artistic design with timeless romantic ambiance, it offers everything from multi-themed banquet halls,executed with precision. The spatial design emphasizes ceremony and privacy while incorporating cutting-edge design languages and international aesthetic perspectives, ensuring that weddings are not just grand ceremonies but also romantic chapters worth cherishing for a lifetime.

建筑外立面
FLOOR PLAN
江蘇咏辰設計事務所针对酒店外立面设计以现代地标之姿,将优雅的弧形体量与竖向肌理结合,形成流动而稳重的视觉形象。金属与玻璃材质的协奏,在昼间折射天光,于夜晚则化为通透的光之容器——大型灯箱与“兴业国际酒店”发光字清晰昭示宴会、婚庆与私享包间核心功能,成为城市夜空中温暖的品牌符号。基座部分以暖黄灯光从落地窗内透出,与绿植、草地共同柔化建筑边界,在高端商务气质中注入自然生机与人文温度。整体设计通过材质对比、光效运用与功能外显,于城市肌理中塑造出兼具昭示性、迎宾感与品牌厚度的建筑表情。
Jiangsu Yongchen Design Firm combines the elegant curved volume with vertical texture to create a flowing and stable visual image for the hotel's exterior design in a modern landmark style. core functions of banquets, weddings, and private rooms, becoming a warm brand symbol in the urban night sky. The base part shows warm yellow light from the french window, softens theign creates an architectural expression that combines symbolism, welcoming feeling, and brand thickness in the urban texture through material comparison, light effect application, and functional display.


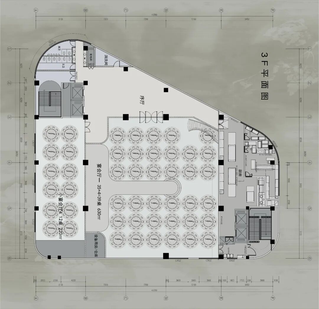
平面布局图
floor plan
江蘇咏辰設計事務所的勾勒下,本项目的平面布局超越了功能划分的层面,致力于构筑一座承载人生重要时刻的艺术殿堂。设计以精准的动线与层次丰富的空间序列,将“体验至上”的理念贯穿始终。从踏入场所伊始,路径便被清晰规划,引导宾客自然而然地步入核心宴会区域,确保整个婚礼流程如诗篇般流畅展开,每一步都浸润在精心雕琢的仪式感与尊贵氛围之中,实现了公共开放性与私密专属感、盛大场面与精致细节的和谐统一。
Under the outline of Jiangsu Yongchen Design Firm, the layout of this project goes beyond the level of functional division and is committed to building an art palace that carries important moments in life.embodying the concept of "experience first" throughout. From the beginning of entering the venue, the path is clearly planned to guide guests naturally into the core banquet area, ensuring that the entire wedding process unfolds smoothly like a poem. Each step is immersed in a carefully crafted sense of ceremony and noble atmosphere, achieving a harmonious unity of public openness and private exclusivity, grand scenes and exquisite details.




室内公区设计
interior design
江蘇咏辰設計事務所针对本项目的酒店大堂设计,以现代轻奢的笔触勾勒出沉稳而通透的空间意境。弧形前台以深色木质与白色基座形成视觉焦点,背后浅绿色大理石墙面与绿植相映,烘托自然生机。黑色镜面大理石地面延伸空间纵深感,反射天花筒灯与线性光带的柔和光影,营造流光溢彩的氛围。家具选用深绿色沙发与棕色座椅,搭配浅色圆桌与艺术挂画,在理性秩序中注入人文温度。整体设计融合材质对比、光影层次与自然元素,打造兼具格调与舒适的婚礼序章。
Jiangsu Yongchen Design Firm has designed the hotel lobby for this project, using modern and luxurious strokes to outline a calm and transparent spatial atmosphere. The curved front desk forms a visual focus with dark wood and a white base, while the light green marble wall and green plants complement each other behind it, highlighting natural vitality. The black mirrored marble floor extends the spatial depth, reflecting the soft light and shadow of the ceiling tube is selected with dark green sofas and brown seats, paired with light colored round tables and artistic hanging paintings, injecting humanistic warmth into rational order. The overall design integrates material contrast, light and shadow layers, and natural elements to create a wedding prologue that combines style and comfort.



江蘇咏辰設計事務所对于电梯厅与走道的设计以“现代轻奢”为脉络,串联起静谧而富有仪式感的旅程。走道通过连续的拱形门廊构筑视觉韵律,暖黄壁灯映照白色竖纹墙面,引导温馨前奏。电梯厅则聚焦于抵达的精致时刻,深棕色电梯、黑色光面大理石与柔和筒灯,营造出沉稳优雅的基色。两处均巧妙点缀银色花钵、鲜活绿植与艺术画作,于简约的米白、灰色与棕黑主调中,注入自然生机与人文温度,形成一场从行进到驻足、从开放到私密、充满艺术格调与情感共鸣的沉浸体验。
Jiangsu Yongchen Design Firm takes "modern luxury" as the thread for the design of elevator halls and corridors, connecting a quiet and ceremonial journey. The corridor is constructed with a continuous arched porch to create a visual rhythm, and warm yellow wall lights illuminate the white vertical wall, guiding a warm prelude. The elevator hall focuses on the exquisite moment of arrival, with dark brown elevators, black smooth marble, and soft tube lights creating a steady and elegant base color. Both places are cleverly adorned with silver flower bowls, fresh green plants, and artistic paintings, injecting natural vitality stopping, from openness to privacy, full of artistic style and emotional resonance.




江蘇咏辰設計事務所对于小宴会厅的设计以“静雅的庆典”为设计理念,在新中式与简约现代风格之间取得平衡。空间以纯净的白色为主调,搭配深木色家具与温润的大理石地面,奠定典雅庄重的基调。设计的焦点汇聚于天花——弧形结构与几何拼接的造型,内嵌柔和光线,宛如为空间加冕。壁灯、线条光与桌上精致的白绿色花艺共同编织出细腻的光影层次。墙面弧形元素、拱形窗与大型投影幕墙,既满足了婚礼仪式功能需求,亦增强了视觉纵深感。整体营造出一个集仪式感、浪漫氛围与现代精致于一体的专属婚宴空间。
Jiangsu Yongchen Design Firm adopts the design concept of "quiet and elegant celebration" for the small banquet hall, achieving a balance between new Chinese style and minimalist modern style. The space is dominated by pure white, complemented bystablishing an elegant the space. Wall lamps, line lights, and exquisite white and green floral arrangements on the table weave delicate layers of light and shadow together. The curved wall elements, arched windows, and large projection curtain walls not only meet the functional requirements of wedding ceremonies, but also enhance the visual depth. Create an exclusive wedding banquet space that combines a sense of ceremony, romantic atmosphere, and modern refinement as a whole.




江蘇咏辰設計事務所对于包间设计以“圆融雅宴”为核心理念,通过圆形餐桌、环形吊灯与弧形吊顶,呼应婚礼的圆满寓意。空间选用深绿与棕灰色绒面座椅,搭配大理石地面与木质墙面,营造沉稳而温润的基底。背景墙通过穿孔发光装饰、格栅与抽象画注入艺术韵律,结合多层次灯光系统——嵌入式筒灯、聚焦照明与柔和主光——烘托出私密而浪漫的氛围。整体设计兼顾仪式感与舒适性,以材质对比、几何符号与光影叙事,打造专属于婚礼庆典的高雅艺术场景。
Jiangsu Yongchen Design Firm takes "round and elegant banquet" as the core concept for private room design, echoing the perfect meaning of the wedding through circular dining tables, circular chandeliers, and curved ceilings. The space features deep green and brown grey velvet seats, complemented by marble flooring and wooden walls, creating a stable and warm base. The background wall injects artistic rhythm through perforated luminous create a private and romantic atmosphere. The overall design balances the sense of ceremony and comfort, creating an elegant artistic scene exclusively for wedding celebrations through material contrast, geometric symbols, and light and shadow narrative.



在楼梯间与洗手间的细节设计中,江蘇咏辰設計事務所延续了整体的婚礼艺术主题与轻奢格调。楼梯间以光带勾勒的大理石阶梯与黑色金属扶手,营造出优雅的仪式感路径;侧墙的艺术画与绿植摆台,注入静谧人文气息。洗手间则通过弧形镜面与环绕灯带,塑造出精致明亮的梳妆场景,灰绿色台面、金属竖条与深色地面构成沉稳而雅致的对比。两者均运用柔和光线、细腻材质与艺术点缀,于流动与驻足之间,共同构筑出私密、优雅且充满仪式感的过渡空间。
In the detailed design of the staircase and bathroom, Jiangsu Yongchen Design Firm continues the overall wedding art theme and light luxury style. The marble staircase outlined with light strips and black metal handrails in the stairwell create an elegant ceremonial path; The art paintings and green plants on the side walls inject a peaceful and humanistic atmosphere. The bathroom creates a delicate and bright dressing scene through curved mirrors and surrounding light strips. The gray green countertop, metal vertical bars, and dark floor create a calm and elegant contrast. Both use soft lighting, delicate materials, and artistic embellishments to create a private, elegant, and ceremonial transitional space between flow and stillness.


宴会厅设计
Banquet Hall Design
兴业国际宴会中心三大主题宴会厅以“一厅一世界”为理念,分别演绎不同维度的浪漫叙事。红色厅以弧形穹顶、璀璨水晶灯与浓郁花卉营造热烈而经典的庆典氛围;莫奈花园厅以紫调为基底,通过艺术壁画与蜿蜒花径还原印象派笔下的诗意花园,诠释柔美与梦境;水晶厅则以蓝白为基调,借助立体花艺、晶莹灯饰与烛光点缀,勾勒出星空般纯净而神圣的仪式场景。各厅均通过色彩、光影与艺术陈设的深度融合,为婚礼与高端宴会提供兼具视觉震撼与情感沉浸的定制化空间体验。
The three themed banquet halls of Xingye International Hotel are based on the concept of "one hall, one world", interpreting romantic narratives from different dimensions. The red hall creates a warm and classic celebration atmosphere with a curved dome, dazzling crystal lights,med in blue and white, with three-dimensional floral arrangements, sparkling lighting, and candlelight embellishments, outlining a pure and sacred ritual scene like a starry sky. Each hall provides a customized spatial experience that combines visual shock and emotional immersion for weddings and high-end banquets through the deep integration of color, light and shadow, and artistic furnishings.









[ 原创声明:本文为结婚产业观察转载;来源:江苏咏辰空间设计;转载请注明作者姓名和来源。文章内容系作者个人观点,不代表结婚产业观察对观点赞同或支持。 ]

关注微信公众号:结婚产业观察(wionews),每日推送,干货互动精彩多